船橋市金杉八丁目戸建

2,090万円

千葉県船橋市金杉8丁目3-11

京成電鉄松戸線「滝不動」駅徒歩20分

価格
2,090万円
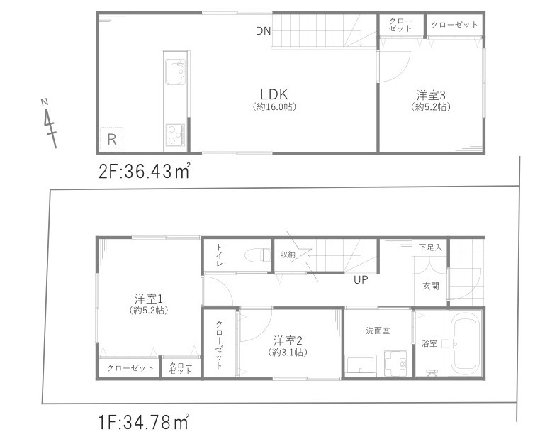
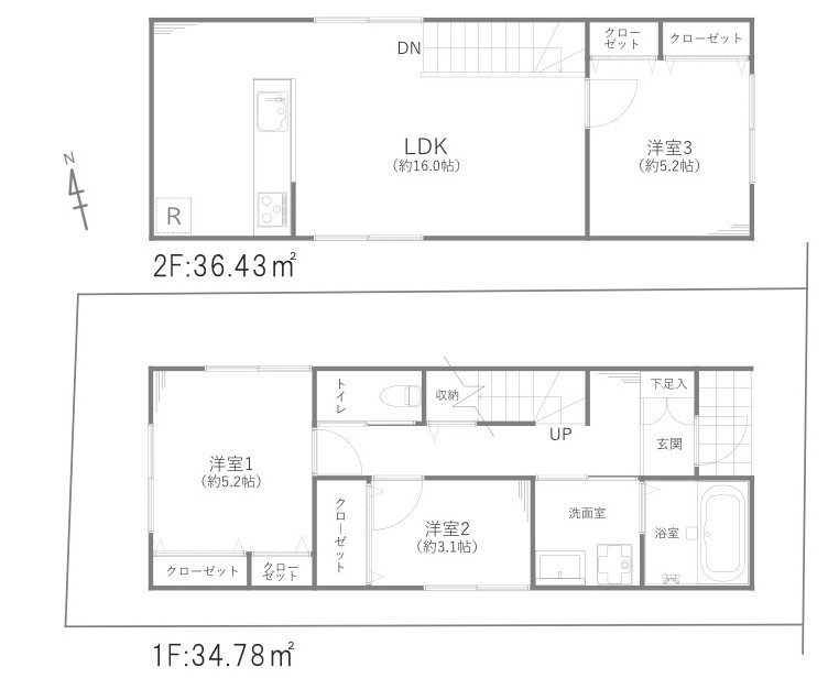
間取り/建物面積
3LDK/71.21㎡
所在地
千葉県船橋市金杉8丁目3-11
築年
2024年7月(築1年)
駐車
交通

京成電鉄松戸線滝不動」駅 徒歩20分

船橋市金杉八丁目戸建の基本情報

物件名
船橋市金杉八丁目戸建
価格
2,090万円
建物面積
71.21㎡
土地面積
20.52坪(67.86㎡)
築年月
2024年7月(築1年)
総戸数
-
所在地
千葉県船橋市金杉8丁目3-11
交通

京成電鉄松戸線滝不動」駅 徒歩20分

船橋市金杉八丁目戸建の詳細情報

設備条件
設備(その他)
    -
駐車場/月額
無/-
土地権利
所有権
国土法届出
不要
用途地域
第一種住居
取引態様
仲介
引渡し
即時
備考
滝不動駅周辺への引っ越しをお考えなら「船橋市金杉八丁目戸建」。2024年7月築のコチラの物件は、落ち着きのある室内が魅力的です。室内の環境も良好な、住みよい中古の戸建て物件となっております。立地している第一種住居地域は、容積率・高さ制限が緩いことに加え、3000㎡までの店舗等の住宅以外の建築物も建てることできる地域です。お客様によって希望とする条件は異なります。当社スタッフは希望条件をお伺いした上で、不動産を紹介しております。

船橋市金杉八丁目戸建のコメント(おすすめポイント)

立地する第一種住居地域は、大規模な店舗や事務所の建築を制限しており、パチンコ屋や一般的な工場などは建てることができない地域なので住居地としても利用されています。築2年以内の物件なので住み心地が良く、快適な中古一戸建です。坂道がなく普段の移動も負担がかかりにくい平坦地です。経済的なメリットも大きい、中古の戸建て物件となっております。当社スタッフが船橋市や滝不動付近の一戸建て探しをサポートいたします。お気軽に地域の情報などもお尋ねください。

船橋市金杉八丁目戸建で募集中の物件

  1. 21.54坪 (71.21㎡)

    2,090万円(97.03万円/坪)

周辺施設

  • セブンイレブン 船橋金杉8丁目店の画像

    コンビニエンスストア

    セブンイレブン 船橋金杉8丁目店

    263m(4分)

  • マルエツ金杉店の画像

    スーパー

    マルエツ金杉店

    807m(11分)

  • 船橋市立金杉小学校の画像

    小学校

    船橋市立金杉小学校

    845m(11分)

  • 御滝中学校の画像

    中学校

    御滝中学校

    1049m(14分)

  • 遠藤医院の画像

    内科

    遠藤医院

    1407m(18分)

よく見られている物件

  1. 加須市川口1丁目

    4LDK (80.01㎡)

    1,130万円

  2. 川口市領家3丁目

    4LDK (110.53㎡)

    3,599万円

  3. 千葉市稲毛区園生町

    4LDK (93.07㎡)

    2,599万円

  4. さいたま市緑区大間木2丁目

    3LDK (93.32㎡)

    3,899万円

船橋市金杉八丁目戸建

お気軽にお問い合わせください

無料お問い合わせ

株式会社ニコハウス

048-252-1645

10:00~19:00

(休:水曜日)