ライオンズマンション東川口第2

2,299万円

埼玉県川口市東川口2丁目20-12

武蔵野線「東川口」駅徒歩9分

埼玉高速鉄道「東川口」駅徒歩9分

価格
2,299万円
間取り/面積
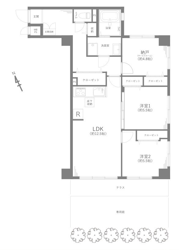
2LDK/69.23㎡
所在地
埼玉県川口市東川口2丁目20-12
築年
1988年5月(築37年)
駐車
-
交通

武蔵野線東川口」駅 徒歩9分

埼玉高速鉄道東川口」駅 徒歩9分

ライオンズマンション東川口第2の基本情報

物件名
ライオンズマンション東川口第2
価格
2,299万円
築年月
1988年5月(築37年)
総戸数
20戸
所在地
埼玉県川口市東川口2丁目20-12
交通

武蔵野線東川口」駅 徒歩9分

埼玉高速鉄道東川口」駅 徒歩9分

ライオンズマンション東川口第2の詳細情報

設備条件
  • エレベーター
  • 駐輪場
  • 駐車2台可
  • 宅配ボックス
設備(その他)
    -
駐車場/月額
-/ 有 8,000円/月
土地権利
所有権
国土法届出
不要
用途地域
第二種中高層住居専用
戸数
20戸 / -
管理形態
管理会社に全部委託
管理員の勤務形態
日勤
管理会社
株式会社大京アステージ
取引態様
仲介
引渡し
即時
備考
川口市周辺にある物件をお求めの方は「ライオンズマンション東川口第2」はいかがでしょうか。徒歩9分圏内に立地する物件です。立地する第一種中高層住居専用地域に加えて、日常の生活に必要な施設の立地が認められているのが、第二種中高層住居専用地域です。住み心地がしっかりと考えられた中古マンションです。物件のご購入をお考えなら、当社にお任せ下さい。お客様のライフスタイルに適した物件をご紹介いたします。こだわりやご要望などございましたら、お気軽にお問い合わせ下さい。

ライオンズマンション東川口第2のコメント(おすすめポイント)

駅から徒歩9分の物件です。主にマンションが立ち並び、住むことを目的とする住居専用地域です。きれいで便利な中古マンションで優雅な生活をおくりましょう。川口市で不動産を購入するなら、利便性の高い暮らしができる東川口が良いでしょう。当社は地域密着型で、確かな情報をご提供しているので、安心してお任せ下さい。

ライオンズマンション東川口第2で募集中の物件

  1. 104

    20.94坪 (69.23㎡)

    2,299万円(109.79万円/坪)

周辺施設

  • 東川口病院の画像

    総合病院

    東川口病院

    368m(5分)

  • セブンイレブンの画像

    コンビニエンスストア

    セブンイレブン

    431m(6分)

  • ダイエーの画像

    スーパー

    ダイエー

    630m(8分)

  • 戸塚北小学校の画像

    小学校

    戸塚北小学校

    653m(9分)

  • 戸塚中学校の画像

    中学校

    戸塚中学校

    1782m(23分)

近隣の物件

  1. 川口市飯塚3丁目

    2SLDK (67.38㎡)

    2,398万円

  2. 川口市川口3丁目

    2LDK (84.00㎡)

    6,780万円

  3. 川口市飯塚1丁目

    3LDK (71.69㎡)

    5,980万円

  4. 川口市川口3丁目

    1LDK (45.42㎡)

    4,590万円

ライオンズマンション東川口第2

お気軽にお問い合わせください

無料お問い合わせ

株式会社ニコハウス

048-252-1645

10:00~19:00

(休:水曜日)